为深入实施质量强省战略,推动设计行业技术创新,提高设计质量和水平,促进技术进步,塑造浙江设计品牌,根据《浙江省勘察设计行业优秀勘察设计成果展示、技术交流和认定办法》,浙江省勘察设计行业协会召开了2019年浙江省勘察设计行业优秀勘察设计成果展示和技术交流会。通过成果征集、展板展示和会议交流,会议技术委员会认定了一批优秀勘察设计成果,我院荣获一等奖2项,二等奖1项,三等奖2项。
省勘察设计行业优秀勘察设计成果展示和
技术交流会现场





我院项目获奖名单
一等奖
建筑工程设计类/
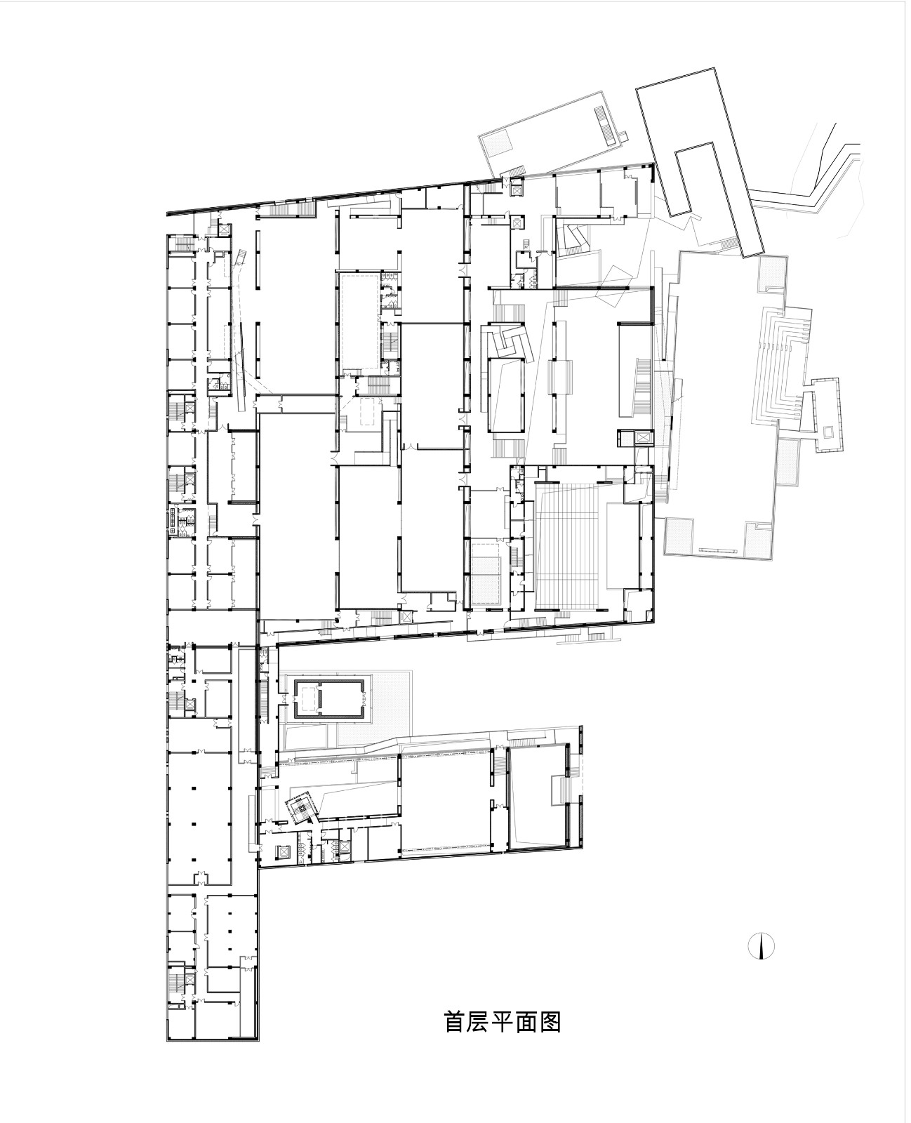
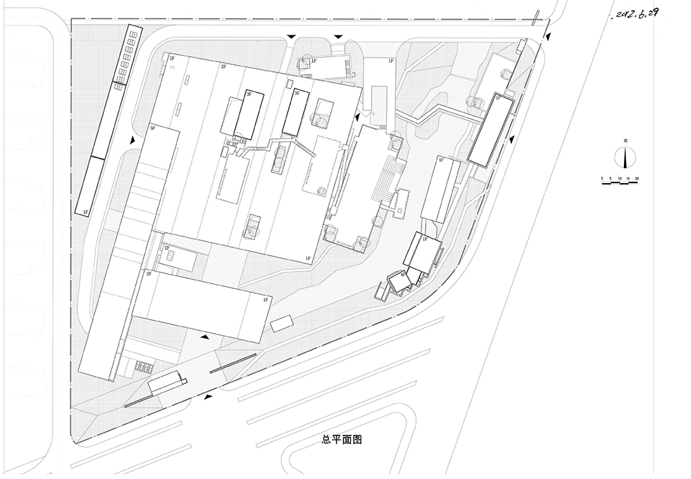
当代富春山居——富阳市
“三馆合一”
(博物馆、美术馆、档案馆)
合作单位:杭州明捷普机电设计事务所
有限公司
风景园林设计类/
南昌市西湖区孺子亭公园整体改造工程设计
二等奖
风景园林设计类/
安吉灵峰度假区灵峰寺区块
一期设计
三等奖
风景园林设计类/
青山湖科技城狮山绿道
景观工程
风景园林设计类/
诸暨赵家镇皂溪村整治改造
合作单位:浙江大学建筑设计研究院
1 项目名称:当代富春山居——富阳市“三馆合一” (博物馆、美术馆、档案馆) 2 项目名称:南昌市西湖区孺子亭公园 整体提升改造工程设计 △孺子亭合南区总图 (日景) △烟笼孺子亭 △仙境人间 △曲廊观鱼 △孺子望月 △水书 3 项目名称:安吉灵峰度假区灵峰寺区块一期设计 △总平面图 △梅涧香坞 △清隐堂 鸟瞰 △清隐堂 △五莲石径 观景点 △孤峰观日 观景点 △孤峰观日 △入口区雪景 △入口区跌水 4 项目名称:青山湖科技城狮山绿道景观工程 △总平面图 △南入口游客中心 △北入口鸟瞰 △文化景墙 △科技长廊 5 项目名称:诸暨赵家镇皂溪村整治改造 △花田栈道鸟瞰 △溪边民居环境改造 △皂溪叠瀑 △村委会办公楼及环境改造 △溪畔骑行道与水中步道 △溪畔古树与亭廊 end 资料来源:项目服务中心二部、建筑工程技术研究院、景观与公共艺术研究院、人文景观研究院、第一综合院、教师分院 供稿:吴颖 责编:刘珂 编辑:王鑫




































